Päiväkoti – osasto 115 m²
| Bruttoala | 115 m² |
|---|---|
| Osastoa | 1 |
| Moduuleja | 4 |
| Lämmitys | Sähköpatterit |
| Runko | Puurunko |
| Julkisivu | Vaaleanharmaa/tummanharmaa puupaneelijulkisivu |
| Varastopaikka | Ota yhteyttä saadaksesi lisätietoja |
Joustavat toimistotilat projektien ajaksi, kasvun tueksi ja muihin tilapäisiin tarpeisiin.
Muuttovalmiit koulumoduulit, joissa arki jatkuu sujuvasti – nopeasti käyttöön.
Turvalliset ja inspiroivat tilat leikkiin sekä oppimiseen.
Viihtyisät asunnot joko käytävän varrella tai erillisinä huoneistoina.
Turvalliset ja muunneltavat tilat hoitoon ja hoivaan.
Tarvitsetteko jotakin tavallisesta poikkeavaa? Toteutamme moduuleja vaativista hoitoympäristöistä koirapäiväkoteihin.
Vakiovalikoiman ulkopuolisia moduuleja edulliseen hintaan.
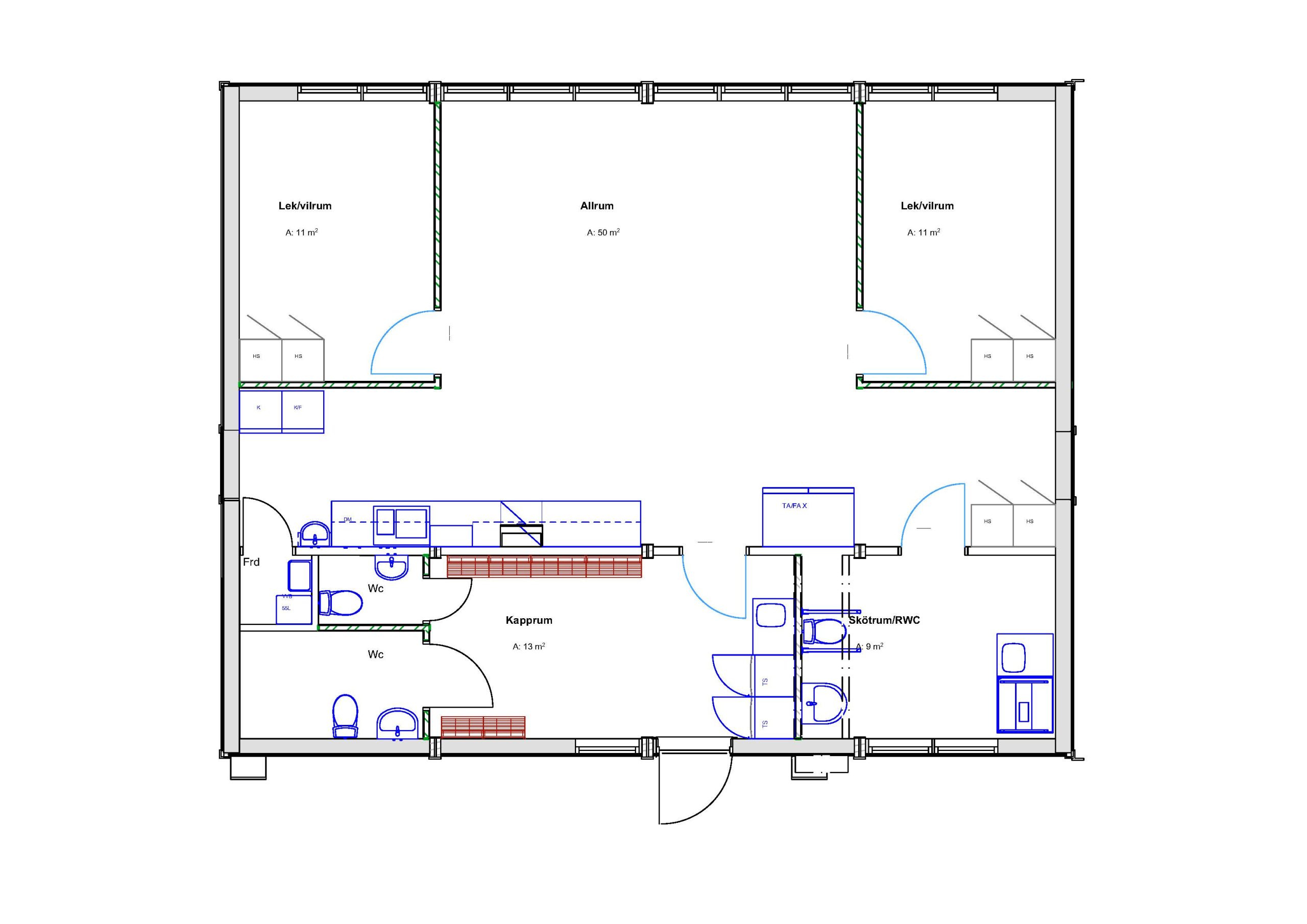
4 moduulia muodostaa tilavan olohuoneen/yhteistilan ja kaksi pienempää huonetta, esimerkiksi lepohuoneeksi tai ateljeeksi. Täydellinen osastokeittiö sisältyy samoin kuin varusteltu eteinen ja WC-tilat. Moduuleja voidaan käyttää erillisenä paviljonkina tai liittää olemassa olevaan rakennukseen.
Meillä on useita päiväkotimoduuleja varastossa. Tämä on esimerkki pienestä päiväkotiosastosta, johon mahtuu jopa 20 lasta.
| Bruttoala | 115 m² |
|---|---|
| Osastoa | 1 |
| Moduuleja | 4 |
| Lämmitys | Sähköpatterit |
| Runko | Puurunko |
| Julkisivu | Vaaleanharmaa/tummanharmaa puupaneelijulkisivu |
| Varastopaikka | Ota yhteyttä saadaksesi lisätietoja |
Täytä sähköpostiosoitteesi, niin otamme sinuun yhteyttä.